top of page
Maison C&I
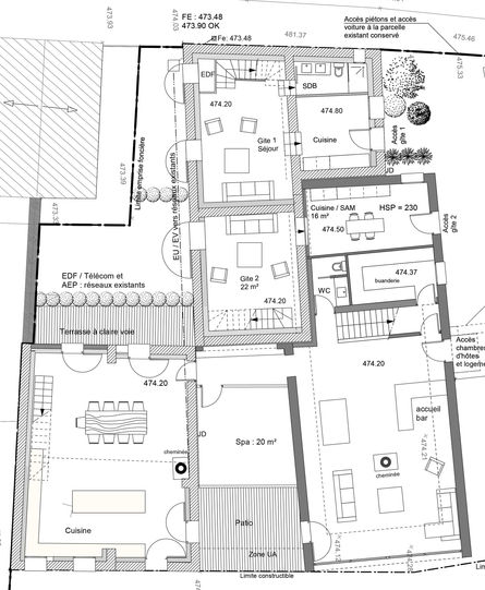
Aménagement, transformation et extension d’une maison de famille et de 2 granges en pierre à Saint Julien le Montagnier.
Réalisation de 2 gîtes et 3 chambres d’hôtes, et de l ’habitation des maîtres d’ouvrage.
Mission de maîtrise d’œuvre pour maître d’ouvrage : privé
Dépôt du permis de construire en octobre 2014.

Atelier d'Architecture
B r é b i o n et H u p i n
SARL Atelier d'architecture Brébion et Hupin
5, Rue Chantecler - 13007 Marseille
T : 04 91 55 58 64 - P : 06 11 58 00 43
a a b r e b i o n h u p i n @ g m a i l . com
bottom of page

















